Uitrit maken/veranderen/verwijderen

Procedure
Waarvoor kunt u een vergunning aanvragen?
Een uitrit of uitweg is een uitgang van een (landbouw)perceel, woning of bedrijf naar de openbare weg. Onder een uitweg valt dus een oprit voor de auto voor of naast het huis, maar ook een apart pad voor voetgangers dat direct op de openbare weg uitkomt.
Welke voorwaarden gelden er?
Wij verlenen een vergunning voor een uitrit in de volgende gevallen, wanneer:
- er geen mogelijkheid is om op een gemeentelijke of particuliere weg aan te sluiten;
- een perceel nog geen andere uitrit heeft (samenhangend geheel van stukken grond);
- Bij samenhangend geheel wordt onder andere gekeken naar het eigendom
- de verkeersveiligheid en een vlotte doorstroming van het verkeer op de weg verzekerd zijn.
Bij het beoordelen van de aanvraag houden we in ieder geval rekening met de volgende situaties:
- zichtafstand (rijzicht);
- afstand tot kruisingen, splitsingen, bochten en verkeersregelinstallaties;
- aanwezigheid van verdrijvingsvakken, voorsorteervakken en opstelstroken;
- aanwezigheid van zichtbare hindernissen.
Gecombineerde uitwegen
- Indien er een mogelijkheid bestaat om een gecombineerde uitweg te realiseren, heeft dit de voorkeur op een eigen uitweg.
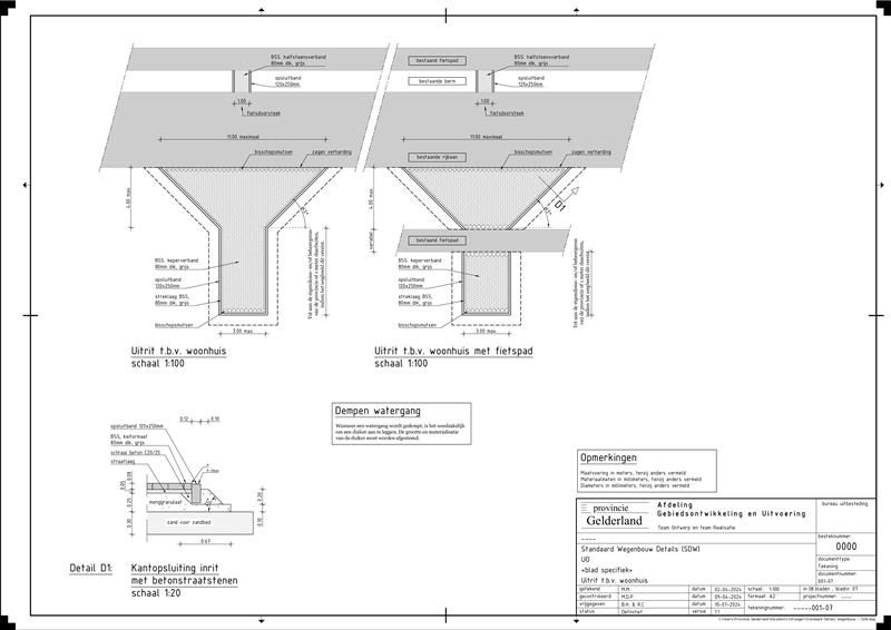
Aan welke eisen moet het ontwerp voldoen?
Hoe moet ik de aanvraag doen?
Een vergunning vraagt u aan via het Omgevingsloket (wanneer u op de link klikt verlaat u deze website). U vindt een link naar het omgevingsloket ook onderaan de pagina.
Vergunningcheck Omgevingsloket
Wilt u weten of u voor een uitwegvergunning in aanmerking komt? Doe dan eerst de vergunningcheck in het Omgevingsloket.
Korte instructie Vergunningcheck Omgevingsloket:
- Ga naar ‘Vergunningcheck’en klik op ‘Doe de Vergunningcheck’.
- Vul het adres in of teken de locatie in (eerst inzoomen). Let op: zorg ervoor dat u een locatie kiest op een provinciale weg!
- Klik op ‘volgende stap’.
- Bij het veld ‘Zoek uw werkzaamheden’ zoekt u op ‘uitrit’ of ‘uitweg’.
- Vink de werkzaamheid ‘Uitrit aanleggen of veranderen’ aan en klik op ‘Volgende’.
- U kunt eventueel nog werkzaamheden toevoegen waarvoor u ook een vergunningencheck wilt doen.
- Klik op ‘Volgende stap’.
- Vul de vragenboom ‘Uitrit aanleggen of veranderen provinciale weg’ in.
- Klik op 'Volgende stap’.
- U ziet nu het resultaat van de vergunningencheck en de ‘Actielijst Omgevingsloket’.
- Via ‘vergunning aanvragen’ kunt u direct een aanvraag indienen.
Hieronder vindt u een korte instructie voor het doen van een aanvraag in het Omgevingsloket:
- Klik op ‘Aanvragen’.
- Klik op ‘Start aanvraag’.
- Log in met DigiD of eHerkenning.
- Vul 2 velden in. Klik op ‘Volgende’.
- Vul het adres in of teken de locatie in (eerst inzoomen). Let op: zorg ervoor dat u een locatie kiest op een provinciale weg!
- Klik op ‘Volgende stap’.
- Kies activiteiten. Dit kan door ‘uitrit’ in te typen en de activiteit te selecteren: ‘uitrit aanleggen of veranderen provinciale weg – Aanvraag vergunning (Provincie)’. Daarna krijgt u de vraag of u nog meer activiteiten wilt toevoegen.
- Vul het formulier in en voeg de bijlagen toe.
- Kies in het 2e scherm bij stap 7 voor ‘Concept’ als u vooroverleg wilt en voor ‘Definitief’ als u de aanvraag definitief wilt indienen.
Heeft u hulp nodig bij het gebruik van het Omgevingsloket? Neem dan contact op met het Helpcentrum van het Informatiepunt Leefomgeving.
Zie binnenkort voor meer informatie onze pagina over het Omgevingsloket.
Hoe lang duurt de afhandeling en wat kost het?
We hebben maximaal 8 weken nodig om een besluit te nemen op uw aanvraag, gerekend vanaf het moment dat u de aanvraag doet. Als u niet alle gevraagde informatie bij uw aanvraag meestuurt, duurt de afhandeling langer. We behandelen aanvragen op volgorde van binnenkomst. Vraag uw vergunning dus op tijd aan. Het risico van starten zonder de nodige vergunning ligt bij u.
Als u een vergunning aanvraagt, dan moet u de provincie daarvoor zogenoemde leges betalen. Meer informatie vindt u op de pagina Kosten.





